新理念,新机制,建设一流新平台
——北理工材料学院先进材料实验中心建设纪实
发布日期:2019-05-11 供稿:党委宣传部 王朝阳 摄影:党委宣传部 郭强,材料学院
编辑:王朝阳 审核:肖雄、张青山、庞思平 阅读次数:材料科学与技术是信息、电子、自动化等高新技术与科学的基础和先导,纵观国内排名顶尖的理、工科类高校学科设置,材料学科均占有基石地位甚至发挥龙头作用。近年来,北理工材料学科发展水平不断提升,学科排名逐年攀升,不仅QS、USNews等世界大学学科排名进入世界前一百名,ESI世界排名前1%行列,还进入国家“双一流”建设学科名单,成为北理工的重点优势学科之一。
然而,学校材料学科不断攀升发展之际,也面临着多种挑战,其中先进实验平台资源的日益紧张,逐渐成为学科发展的最大隐忧之一。如何破解发展中的瓶颈问题?在学校的大力支持下,材料学院写下一张漂亮的答卷。

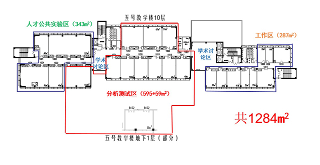
2018年底,开云kaiyun官网先进材料实验中心正式建成,这个面积1284平米,拥有总价值3000万仪器设备资产的高水平实验平台,不仅充分体现了“现代化、集约式、开放型”的建设理念,也是首个学校依托学院建设的公共实验平台。新理念,新机制,新平台已“崭露头角”,为“双一流”建设注入强劲动力。
精谋细划,“立制”先行

学校实验平台规划建设小组召开会议
“2016年10月20日,在良乡分析测试中心正式运行那天,校党委书记赵长禄提出要加速打造一流实验平台,力争‘十三五’期间,大幅推动学校实验平台建设。随后,学校成立了时任校长助理龙腾牵头筹备组织的平台规划建设工作小组,全面推进实验平台建设工作。材料学院精心准备,经过充分论证,最终获批建设先进材料实验中心。”资产与实验室设备处副处长兰山回忆到。
建设之初,先进材料实验中心就拥有非常清晰的定位:立足材料科学的国际前沿,以及国民经济和国防建设的重大需求,致力于服务新材料的制备、表征及其应用研究,并成为提升人才培养、科学研究、学术交流以及社会服务水平的重要平台。
“材料学科处于上升的关键期,但人才队伍不断壮大与实验室面积日益紧缺之间的矛盾;面向国际学术前沿与缺乏先进实验平台支撑之间的矛盾;标志性成果全链条创新与独立封闭的研究条件之间的矛盾逐渐凸显,建设这一平台就是以先进实验条件建设为突破点,以体制机制创新为切入点,瞄准材料科学世界前沿提高加速度!”材料学院院长庞思平这样分析了实验中心建设的初衷。

材料学院先进材料实验中心平面图
面对“双一流”建设,学校始终坚持大力投入,通过资源调整,在中关村校区5号实验楼为先进材料实验中心提供了充足的建设空间,还划拨了1000万元的专项建设经费。虽然“粮草充足”,但是在实验中心建设之初,学校却坚持“稳中求进”,把坚持精谋细划作为了建设高水平公共实验平台的先决条件。

材料学院相关负责人赴西北工业大学调研
从2016年底启动论证,直到2017年暑期实验中心才正式立项,在论证过程中,实验平台规划建设工作小组牵头召开论证沟通会十余次,材料学院优化建设方案十余版。在制定建设方案期间,为打造一流实验室,本着“集众家之长,取自我之道”的理念,材料学院书记、院长带队到清华大学、北京大学、上海交通大学、西安交通大学、西北工业大学等多所知名学校进行专项走访、调研、取经。从实验室的硬件建设、制度保障、人员配备、信息化建设,到实验室的每一个小细节,都一一关注和细细询问。在大量详实调研的基础上,建设团队心里越来越有底,实验中心的建设蓝图逐步清晰和明朗起来。
材料学院的建设方案不仅包括环境改造和仪器设备等“硬件条件”建设方案,还包括了花大力气完善细化的管理机制等“软件条件”建设方案。共制定了管理办法、入驻协议、对外服务办法、门禁系统管理办法、仪器托管管理办法、学生自主上机办法、应急处理程序等大大小小20多项制度,整套管理文件加起来足有200多页。
除了管理制度的科学严谨,实验中心的运行还充分体现了“服务”理念,也就是始终将服务“双一流”建设作为自己的使命。这一点,材料学院张加涛教授颇有感触:“实验中心建成前,我们在往校外送样品和等待测试上要浪费很多宝贵的时间。自从中心建成后,制备出新材料样品马上送到10层,很快就能在中心的测试平台进行XRD、XPS、红外光谱等测试,大大缩短了测试的周期,提高了科研效率。而且,实验中心非常重视师生的反馈意见,会根据我们的需求及时调整设备及测试项目。大家真切感受到了拥有自己的测试实验平台的便利性。”
除了提供设备资源的集约化支持外,实验中心还精心设计,对优秀科研成果给予奖励。“我们采用‘分级式’管理模式,将用户根据成果产出及信誉度等指标分为不同星级,对于成果产出多的用户,中心可以为测试费用‘免单’或优惠,这样的激励机制就是为了更好地带动成果产出,营造良好的科研学术氛围。这也充分体现出服务一流建设是中心的工作目标。”材料学院副书记、副院长刘艳这样介绍。
“小投入”撬动“大资源”
材料科学不能“纸上谈兵”,对材料结构、性能和表征等研究都离不开现代化的分析测试手段,因此高水平的仪器设备是提升科学研究水平的前提。“材料学科的发展依赖仪器,都说巧妇难为无米之炊,其实做饭的‘锅’也很重要!”张加涛这样比喻道。
对于拥有价值5个亿仪器设备的材料学科群来说,盘活设备是一项极为浩大的工程。面对现存设备中能够提供公共服务的仪器设备被大量分散在各个课题组,开放程度不高且无法统一管理的现状,材料学院打破传统思维,认真思考如何用“小投入”撬动“大资源”,首先通过“利旧与共享”托管学院各实验室的一部分设备,推动大型仪器设备开放共享,同时根据学科发展和材料分析测试研究体系的需要,使用学校支持资金购置新仪器。

材料学院讨论仪器托管管理办法
“确立理念、统一思想很重要,要提前把道理和老师们讲清楚。设备托管在实验中心,第一可以节约自己的实验空间,第二不必承担高昂的设备维护费用,第三,也是最重要的,设备有专人管理了,功能开发更充分,可以为更多人提供服务,一举多得。老师们理解了这些,自然就会配合工作。因此,在征集仪器设备的时候,困难没有想象中的大,目前中心已经有托管设备17台。”刘艳介绍到。

实验员宋廷鲁为学生讲解XPS样品制样技巧
X射线光电子能谱(简称XPS)是通过光电效应原理获得物质表面化学组成的一项技术,也是材料分析中的一项基本测试。材料学院郝建薇教授课题组多年来一直负责学院微区扫描XPS设备的运行和维护。“XPS的利用率很高,不光课题组内使用XPS进行材料表面分析,校内外的很多课题组都将样品送来测试。”课题组博士生石慧介绍说,她也是这台设备的主要操作人之一。正是这样一台“热点”设备,在实验中心成立之后,郝建薇站在学科发展角度和设备日常使用实际,将XPS设备交给实验中心管理。此后,这台XPS设备不仅得到了规范统一管理,设备保管使用环境也大大提升,保持了更好的工作状态,在方便校内外课题组送样测试的同时,大大提高了仪器的使用效率,更为重要的是设备的托管节约了师生的工作精力,可以让课题组更好地聚焦于科学研究本身。
随着老师们对这种“托管模式”的逐步认可,除了“托管”原有的旧设备,在采购新设备时,老师们首先想到的就是交到实验中心统一管理。材料学院吴川教授将一台新购置的台式扫描电镜直接托管到实验中心,他表示:“这台设备是我们课题组开展科研工作所必需的,但并不能达到每天使用的频率。据我所知还有很多课题组有测试需求,于是我们将设备托管到实验中心共享,既方便了大家又避免了重复购置。实验中心还为设备配备了一名具备多年电镜操作经验的实验员老师,保证设备随时处于良好的状态。我们课题组的师生在使用设备时也能得到实验员老师的耐心专业的指导。今后,如再购置分析测试类设备,我还是希望能托管到实验中心,最大限度地开放共享。”

400M核磁“特聘”管理员黄木华
在实验中心,仪器设备不仅可以实现“托管”,还可以实现“专管”。材料学院黄木华特别研究员对核磁共振波谱仪有着近20年的使用经验,实验中心建成后,他成为一台400M核磁的‘特聘’管理员。“特聘”的意义在于,黄木华不仅可以更加方便地使用仪器,也凭借其在核磁方面的专业知识和经验,肩负起仪器的日常维护、测试服务、技术咨询和新功能开发,还为本科生开设核磁方面的通识选修课。有了实验中心的支撑,黄木华也成为深耕核磁技术领域的专家,不仅积极参加行业的学术交流,还被推选为北京理化分析测试学会波谱学会分会的理事兼副理事长。“实验中心不仅要提供分析测试服务,还要利用高水平人才来激活设备、盘活设备,‘特聘’管理员的作用就在于此。”庞思平表示。

1.实验员彭禄做动态热机械性能分析 2.实验员李红进行X射线应力分析仪样品安装
3.实验员范蕾操作BELSORP maxll 全自动多站式微孔材料物理吸附分析仪 4.实验员阎承伟进行差式扫描量热仪测试
截至目前,初建成的先进材料实验中心的分析测试区就巳拥有30台公用大型设备,总价值3000万,通过“利旧与共享”,实现了1000万“小投入”撬动3000万“大资源”。在这30台设备中,既有通用型仪器,又有瞄准国际前沿的高端高值仪器,可提供核磁、电镜、X射线系列、元素分析、色谱、光谱、力学和热性能、聚集和吸附性能等分析测试服务,已面向全校开展了分析测试类服务1000余次。

实验员陈寒元正在和学生用扫描电子显微镜测试样品
实验中心现有5名专职实验人员,全部具有硕士及以上学历,设备管理经验丰富。谈到在实验中心的工作感受,陈寒元老师说道:“作为一名实验技术人员,能在这个平台工作,我感到很幸运。实验中心工作环境干净整洁,管理严格规范,同事团结热心积极向上,工作氛围风清气正。中心为我们提供了优质的工作平台及经常性的校内外培训机会,我学习到多种测试技能,并掌握和精通几项专属测试项目,自己的特长和兴趣得到了很好的发展。”宋廷鲁老师也深有同感:“在参与实验中心建设过程中,我切身感受到了学校和学院上下一心共建一流平台的决心和力度,也使得我们这些在中心从事具体实验工作的老师对待工作丝毫不敢放松。看到测试量与日俱增,收到师生们众多好评,大家虽然工作忙碌却很有获得感。同时,我和中心的其他老师也不断提升自己的工作技能,与领域内的专家经常沟通,也申请了校内开放实验课程,希望能向着专家型实验技术人才的方向努力,与平台共成长。”

第11期“材料分析测试技术学堂”举办,MicrotracBEL公司资深工程师为师生讲解物理吸附分析技术的基本原理及最新应用
实验中心聚焦人才培养,搭建了“上机操作、课程实践、讲堂学习”三位一体的基于实验平台的学生实验能力培养模式。实验中心的仪器设备面向全校学生开放,经过培训的学生可预约自主上机,在提升学生实验能力的同时,也提升了设备在非工作时间的使用率。对于教学工作,实验中心实行“免费使用”的支持政策,鼓励老师们依托中心的仪器设备资源开设课程。目前,实验中心已开设了《有机材料结构分析实践》《无机材料物理性能与表征技术》《核磁共振波谱技术在先进材料研究中的应用》等多门课程,为教学工作注入了新的活力。学校学术讲座众多,却鲜有分析测试技术类的讲座,实验中心首创“材料分析测试技术学堂”,邀请国内外分析技术领域的专家开设系统化高水平的讲座,目前已成功举办11期,深受广大师生欢迎,填补了学校高水平实验技术系统培训的空白。
为“青椒”成长培植沃土

先进材料实验中心公共空间
近年来,在学校实施“强师兴校”战略的背景下,材料学院不断加大引进高层次人才的力度,学科人才队伍逐渐壮大。但由于缺乏公共研究平台、大型仪器分散、配套研究条件建设周期长等,不利于青年人才科研学术工作的开展。因此,改善科研条件、增加办公面积、改革实验室机制,成为人才队伍建设和学院学科发展迫在眉睫的工作。

先进材料实验中心人才入驻签约会
先进材料实验中心在建设时,试点建设公共实验室,打破了“固定”实验室分配模式,采取“流动”使用模式,按照“条件准入、签约入驻、流动使用”的分配方式,遵循“准入退出、流动使用、统筹管理、规范运行”的管理原则,为优秀青年教师和高层次引进人才快速启动研究工作提供阶段性实验用房。中心建成不到三个月,已有8名青年人才和1名客座教授签约入驻。校长张军在视察实验中心时,对这种模式给予了充分认可。“我们特别注重对青年人才的支持,着力保持公共实验平台的流动性和活力。”材料学院党委书记张青山介绍说。

1.学生进行功能材料合成实验 2.学生在观察有机染料在氙灯照射下的降解情况
3.学生在太阳光模拟器上准备光催化实验 4.学生在进行纳米自组装材料样品的制备
“我在加州大学洛杉矶分校(UCLA)读博时,就体会到建立这样一个实验平台的便利性,它可以让我们一边做合成,一边迅速地做分析,因此当我听到学院要建立这样的一个实验中心时非常高兴,得知自己可以入驻更是激动不已。”材料学院陈棋教授这样分享自己的感受,“公共实验室就像是一个流动性质的孵化平台,帮助青年教师成长、成熟。这是‘青椒’的成长沃土!”
材料学院李霄羽教授也是公共实验室的第一批入驻者,“我所从事的研究,包含了很多不同的方向,有机合成、高分子合成、高分子组装、材料性能测试等都有所涉及,因此对实验室的空间和条件有所要求。当入驻公共实验平台的时候,我感到无比激动,这里完全可以和以前在国外所见过的世界一流实验室条件相媲美,觉得研究团队终于能有足够的地方开展实验,自己终于能大展身手!”

张加涛、陈棋、李红博、钟海政公共实验室一角
除了提供公共实验平台外,实验中心还“用心”地将研究方向相近的教师集中在相近区域做“邻居”。例如研究半导体纳米晶材料的张加涛教授,研究钙钛矿、太阳能电池的陈棋教授,研究纳米晶太阳能的李红博教授和研究量子点、OLED的钟海政教授就是同一个实验室大区的“邻居”。这样一来,不仅仪器设备可以更好地共享使用,也更容易在相邻交往中迸发出交叉创新的火花。
“拎包入住”的实验条件、“一站式”集成材料合成与表征的实验模式、“年轻化”“国际范”的交叉融合氛围,使得实验中心建成不久,就高效催生了一批高水平的研究成果。张加涛教授课题组在金属@半导体纳米异质结构的光电催化、电催化等研究方面取得了系列进展,发表了包括Adv. Energy Mater.、Nano Energy、 Adv. Functional Mater.等顶级材料类杂志文章;钟海政教授受邀担任《The Journal of Physical Chemistry Letters》副主编;陈棋教授课题组在国际顶级学术期刊《Nature Communications》上发表了题为《Strain engineering in perovskite solar cells and its impact on carrier dynamics》的研究论文;李霄羽教授在国际著名期刊Polymer Chemistry,Angewante Chemie International Edition,Nature Communications上各发表了一篇研究论文,其中Polymer Chemistry上的论文还被选为了封面文章;何春林教授在新型含能材料研究方面取得重要进展,相关成果发表在Journal of Materials Chemistry A期刊并被选作热点文章。
新时代,新使命,新征程。面向“双一流”建设,先进材料实验中心的建设,仅是学校下大力气、加大力度建设一流实验平台的缩影,也是学校深化综合改革、深入推进“双一流”建设的具体举措之一。建设中国特色人民满意世界一流大学,北理工接续奋斗、久久为功!